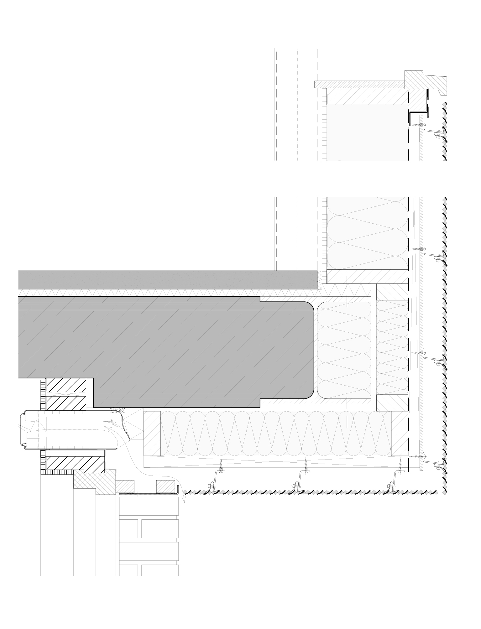
MD Strekmetaal gevel met MD Clips bevestiging
STC112 is een samenstelling van MD Strekmetaal en het MD Clips bevestigingssysteem. De panelen worden gemonteerd op een HSB achterconstructie. Dit geheel wordt veelal toegepast bij gevels en plafonds.
Op de HSB achterconstructie zijn MD Clips geschroefd. Hierin wordt het MD Strekmetaal geklemd. De MD Strekmetaal panelen kunnen zowel verticaal op de geveldelen, als horizontaal op de plafonds worden gemonteerd.








